Dane techniczne:
- Zmywarka do zabudowy o szerokości 60 cm
- Pojemność na 14 zestawów naczyń
- 6 programów i 4 temperatury mycia
- Sterowanie elektroniczne ze wskaźnikami LED
- Automatyczny program prania ICS+
- Funkcja opóźnionego startu (do 12 godzin)
- Sygnalizacja pracy urządzenia wiązką światła w kierunku podłogi
- Suszenie przez naturalną konwekcję
- Automatyczne otwieranie drzwi po zakończeniu programu (z możliwością wyłączenia)
- Funkcja mycia dla połowicznego wypełnienia komory zmywarki
- Regulowany górny kosz nawet po załadowaniu, dzielona trzecia górna półka na sztućce
- Zużycie wody na 1 cykl (program ECO): 10 l
- Emisja hałasu: 44 db(A)
- Klasa emisji hałasu: B
- Ochrona przed przelaniem i wyciekiem wody Aquablock
Klasa energetyczna: D
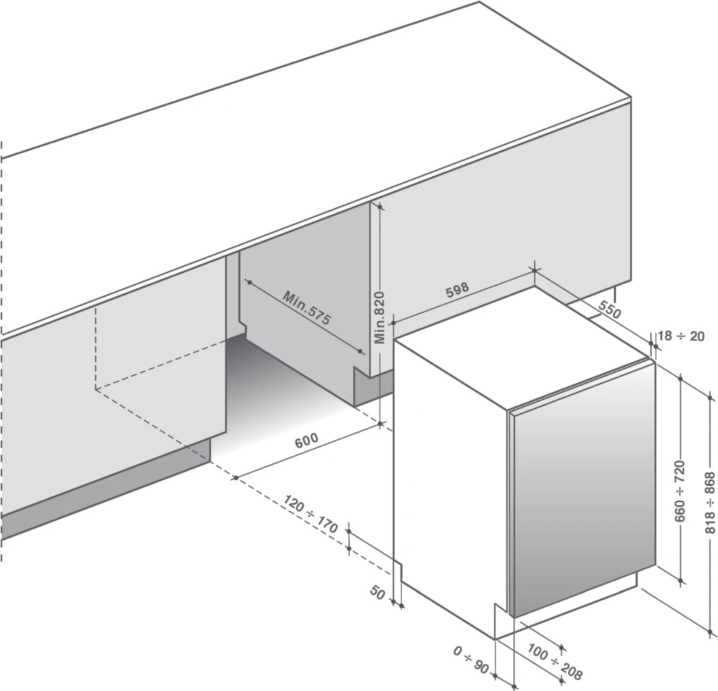
Szer. 60 cm Wys. 82 cm Głęb. 58 cm












